0551-65568226
18055117184(微信同號)
該工作區由 507 廠房改造而來,希望它能變成一個簡單、歡樂、溫暖、模塊化和獨特的。實際是賦予了建筑一個低調的外觀,使它能完美地融入周邊的工業環境。
更新后的建筑保留了原始的鋼結構
與樓梯扶手集成的滑梯
這一個簡單、活潑、溫馨并獨特的工作場所
多功能的休息區
用于交叉設計的空間
一層的交通空間
會議室
總平面圖
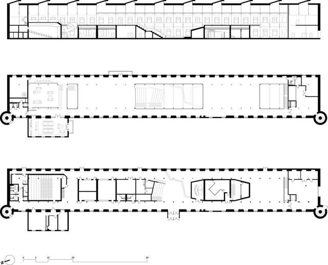
剖面和平面圖
皖ICP備12009035號-1